GER - Erweiterung Hallenkomplex
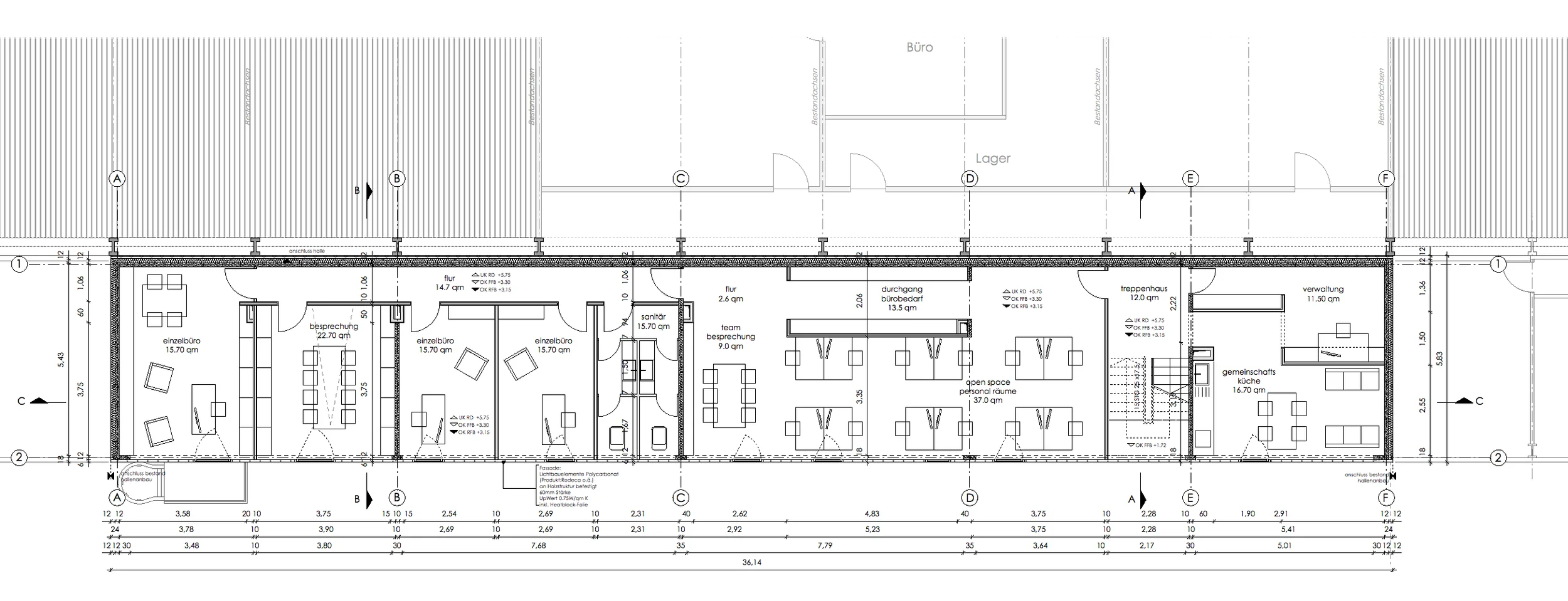
Die BuiltUp GmbH, ein mittelständischer Handwerksbetrieb aus Geretsried, beauftragte Teamwerk-Architekten mit der Planung einer Verwaltungseinheit an einem bestehenden Hallenkomplex im Gewerbegebiet von Geretsried im Süden von München. Die Bestandshalle aus den 80er Jahren sollte um einen dreigeschossigen Anbau mit Büros und Sozialräumen für die Mitarbeiter ergänzt werden.
Bei der baurechtlich einzig für einen Anbau geeigneten Fläche war die Baustelleneinrichtung und Zuwegung stark eingeschränkt, sodass als Bauweise eine modulare Holzkonstruktion aus Massivholzplatten für Wände, Dach und Decken der Firma ABA-Holz gewählt wurde.
Nach Errichtung einer Bodenplatte wird der gesamte Baukörper in einer Woche mit einem mobilen Kran aufgebaut. Sämtliche darauf folgenden Arbeiten sind dann ohne Einsatz eines Kranes möglich.
Als Fassade wurden großformatige Polycarbonatplatten gewählt, in welche Fensterelemente eingesetzt werden. Vorteil der Verwendung der Fassadenelemente war die sehr schnelle Montagezeit, die auch durch ungeschulte Mitarbeiter des Bauherrn nach Montageanleitung durchgeführt werden konnte und die hohe Lichtausbeute über die gesamte Fassade hinweg.
Nach erfolgreicher Genehmigung befindet sich das Projekt gerade in der Werkplanungsphase. Eine Realisierung ist für das Frühjahr 2016 geplant.
Projektdaten:
Bauherr: BuiltUp GmbH
Ort: Geretsried
Fläche: 1.900 m2
Realisierung: 2016
LPH 1-5
 
                         
            