JYV - Wohnsiedlung in Jyväskylä
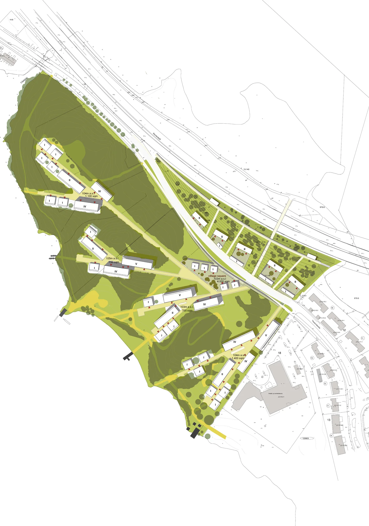
The competition area is characterised by a dualism between quiet, forested lakeshore area and a noisy neighbourhood to the 4-lane motorway. Therefore, the challengeis to find a structure which allows inhabitants to profit from the lake as much as possible and to be protected from the noise of the motorway. Thus the concept keeps and in some parts completes the dense forest in order to create a natural shield against the noise. Similar to clearances, living communities are "cut out" of the forest. The position of the buildings, the natural barrier of the trees and the topography define squares in the community which enhance social activity and create a unique identity for each neighbourhood. Applied on the macro-scale the design proposes to combine the origin desire of individual houses with the requirement of dense urban and suburban living conditions. Similar to a physical fusion a multiplicity of dispersed units is melted into housing units of different size, offering a variety of forms of living depending on their position in the building. 8 different spatial prototypes are puzzled into the block. The type of use is not defined by the prototype; the exact position in the block and the definition of the public and private open space allow for a variety of different forms of living and a maximum of possibilities to find your "personal house" within the unit.
In Kooperation mit el:ch Landschaftsarchitekten, Elisabeth Lesche, Christian Henke
 
                         
             
             
            