OLY - München Olympia Tower
Wohnraumerweiterung durch aufgesetzte frei tragende Kuben
Entwicklung eines Gestaltungs- und Sanierungskonzeptes für das Hochhaus „Helene" in München mit dem Ziel der nachhaltigen Umnutzung zu einem Wohnhochhaus im Ensemble des Olympischen Dorfes. Als Grundlage für ein nachhaltiges Umnutzungs- und Gestaltungskonzept wurden in Form einer aufwendigen Analyse und Revitalisierungskonzeption die Qualitäten und Besonderheiten des Ensembles „Olympisches Dorf", und der Bausubstanz des Gebäudes „Helene" genau analysiert. So soll es möglich sein eine, im Rahmen des Ensembles mögliche, Sanierungs- und Umnutzungsstrategie mit hohem wirtschaftlichen Potential zu entwickeln.
Ansicht von Süden
Grundriss Loftgeschoss
Vogelperspektive mit den 2 markanten Erschließungskernen
Vogelperspektive von Süden
Ansicht von Westen
Grundriss Regelgeschoss Familienwohnen
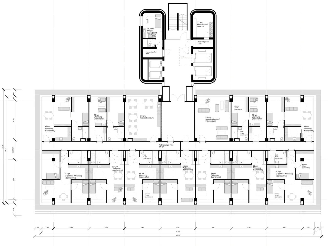
Grundriss Regelgeschoss Wohnen 70+
Grundriss Regelgeschoss Boardinghouse
Dachterrasse Penthouse
 
                         
             
             
             
             
             
             
             
             
            