INF_HEIT - Kita Infanterix Heiterwanger
Die Kindertagesstätte in der Heiterwanger Straße in München ist die 4. Einrichtung des privaten Betreibers Infanterix, die Teamwerk-Architekten realisiert.
Dazu wurde ein bestehender, aufgegebener Supermarkt aus den 70 Jahren umgenutzt. Dabei stellte sich heraus, dass gerade alte Versorgungseinrichtungen in Ensembles aus dieser Zeit ideal für Umnutzungen in Kindertagesstätten sind. So verfügen sie meistens über ausreichende Freiflächen, die direkt an die Gebäude anschließen, als auch ein schon vorhandenes, den Vorgaben der Stadt genügendes Stellplatzangebot.
Die Herausforderung in der Umnutzung in die soziale Einrichtung einer Kindertagesstätte lag somit in einer Umstrukturierung des Bestandes nach den Vorgaben des ByKiBiG des Referates für Bildung und Sport. Es stellte sich heraus, dass auch hier die auf wenige Stützen reduzierte Konstruktion des Bestandes eine individuelle leichte Grundrissorganisation ermöglichte.
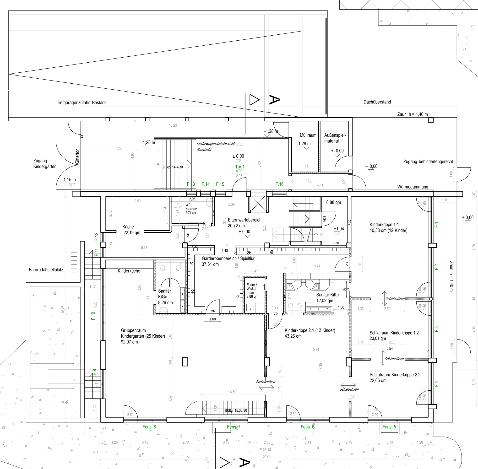
So befindet sich im Erdgeschoss der zentrale Garderobenbereich mit einem kleinen Elterncafe, der Küche und zwei Kindergruppen. Diese arrangieren sich um einen zentralen Sanitärbereich mit Wickeltischen, Kindertoiletten und Waschbecken. Über eine Treppe, direkt von den Gruppenräumen erreicht man den großen Mehrzweckraum im Souterrain. Hier wurden ebenso Lagerräume und die Sozialräume der Mitarbeiter angeordnet. Im Obergeschoss des Gebäudes befindet sich die zentrale Verwaltung aller 7 Kindertageseinrichtungen der Infanterix GmbH. Da der bestehende Dachstuhl nur ein Notdachstuhl, und ein Ausbau unmöglich war, wurde dieser komplett erneuert, gedämmt und ausgebaut. Neue Fensterflächen und Dachfenster belichten den Raum.
Der große Raum unter dem erneuerten Dachstuhl wird mit Glaswänden gegliedert, sodass Einzelbüros und Mehrpersonenbüros, Arbeiten im Großraum und Besprechungen möglich sind.
Das Farbkonzept sieht für die unterschiedlichen Funktionen besondere Farbwerte vor: die Gruppenräume wurden orange, die Schlafräume petrol, der Mehrzweckraum blau, der Flur hellgrün und die Verwaltungs- und Personalräume rot angelegt. Dieses Farbschema wurde am Boden, an den Wänden und auch bei den Leuchten angewandt.
Durch leichte Farbnuancen, hervorgerufen durch unterschiedliche Materialien, entstand ein besonderes Farbspiel.
Runde Pendelleuchte greifen die Kreise im Logo des Betreibers Infanterix auf. Die Leuchten wurden in unterschiedlichen Größen und Höhen montiert. Die farbigen Stoffschirme greifen die Grundfarbe des Raumes auf und setzen diese in leichten Farbnuancen um.
Projektdaten:
Auftraggeber: Infanterix GmbH
Ort: München
Jahr: 2014 - 2016
LPH: 3, 6-8
BGF: 400 qm
Freifläche: 520 qm
 
                         
             
             
             
             
            