AUG - München Hinterhofbebauung
Im Hinterhof eines gründerzeitlichen Stadthauses wurden zwei Hinterhäuser als Mehrfamilienhaus und Stadthaus entwickelt.
Dabei wurden die Kubaturen der umliegenden Brandwände der Nachbarbebauung aufgenommen und fortgeführt. Über aufwendige Sonnen- und Beschattungsstudien wurde die Anordnung der Fenster definiert.
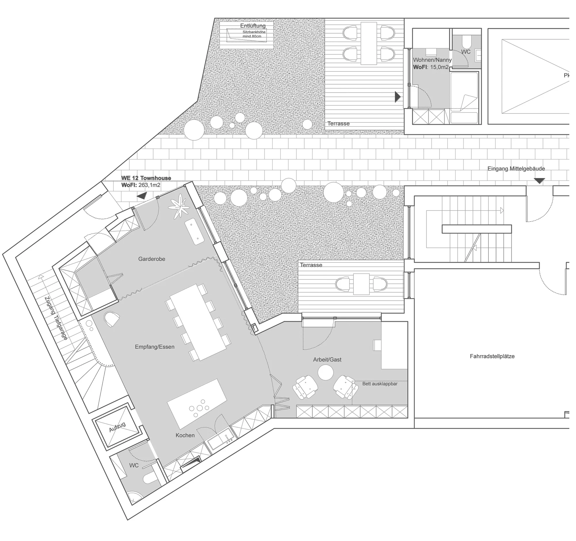
Es ergaben sich zwei unterschiedliche Haustypen mit einem Mehrfamilienhaus im ersten Hinterhof und einem autarken Stadthaus mit eigenem Garten und drei Dachterrassen im zweiten Hinterhof.
Eine Tiefgarage, die über einen Parklift erschlossen wird, bildet die Basis des Bauvorhabens. Sie erstreckt sich über das gesamte Grundstück und ist mit einem direkten Zugang an das Vorderhaus angeschlossen. Hier wurden Parkplätze für den gesamten Neubau und das neu geplante Dachgeschoss des Vorderhauses hergestellt.
Das Stadthaus erstreckt sich über 4 Geschosse. Einem Foyergeschoss mit Büroeinheit und Nebenräumen, einem Wohngeschoss mit Esszimmer, einer Ebene mit Schlafzimmer mit Masterbad und einer Bibliothek als Adlerhorst über den Dächern von München mit einer großen Dachterrasse.
Das Stadthaus verfügt ebenfalls über einen direkten Zugang zur Tiefgarage mit den dazugehörigen Nebenräumen.
Projektdaten:
Auftraggeber: Pronesta Augusten GmbH
Ort: München Augustenstraße
Realisierung: 2016
Foto Tommy Lösch
Foto Tommy Lösch
Foto Tommy Lösch
Foto Tommy Lösch
Foto Tommy Lösch
Foto Tommy Lösch
Foto Tommy Lösch
Foto Tommy Lösch
Foto Tommy Lösch
Foto Tommy Lösch
Foto Tommy Lösch
Foto Tommy Lösch
Foto Tommy Lösch
Foto Tommy Lösch
Foto Tommy Lösch
Foto Tommy Lösch
Foto Tommy Lösch
Bauphase beginnt in der Augustenstraße.
 
                         
             
             
             
             
             
             
             
             
             
             
             
             
             
             
             
             
             
             
             
             
             
            