PUT - Einfamilienhaus Putzbrunn
Foto Jann Averwerser
Eine junge Familie plante den Neubau ihres neuen Familiendomizils auf dem Grundstück ihres Elternhauses. Wunsch war ein kleines aber besonderes Haus mit einem großzügigen und offenen Familienbereich im Erdgeschoss, zwei Kinderzimmern mit eigenem Bad und einem Masterbedroom mit Bad und Wellnessbereich. Verschiedene Entwurfsvarianten haben ergeben, dass dabei, um Kosten zu sparen, der Keller des Bestandshauses verwendet werden kann. Unter der Berücksichtigung der Geometrie des Grundstückes und die Ausnutzung der Abstandsflächen wurde eine Gebäudekubatur aus zwei scheinbar unabhängigen Townhäusern entwickelt. Auf einem offenen Sockel bilden die beiden Volumen den Kinderbereich und das sogenannte Elternhaus ab. Die klaren Volumen spielen dabei mit dem Bild des klassischen Reihenhauses, verschlingen und überlagern sich dabei aber miteinander.Durch den Versatz der beiden Volumen ergeben sich im Erdgeschoss spannende Bezüge und nutzbare Aussenecken auf der Terrasse. 
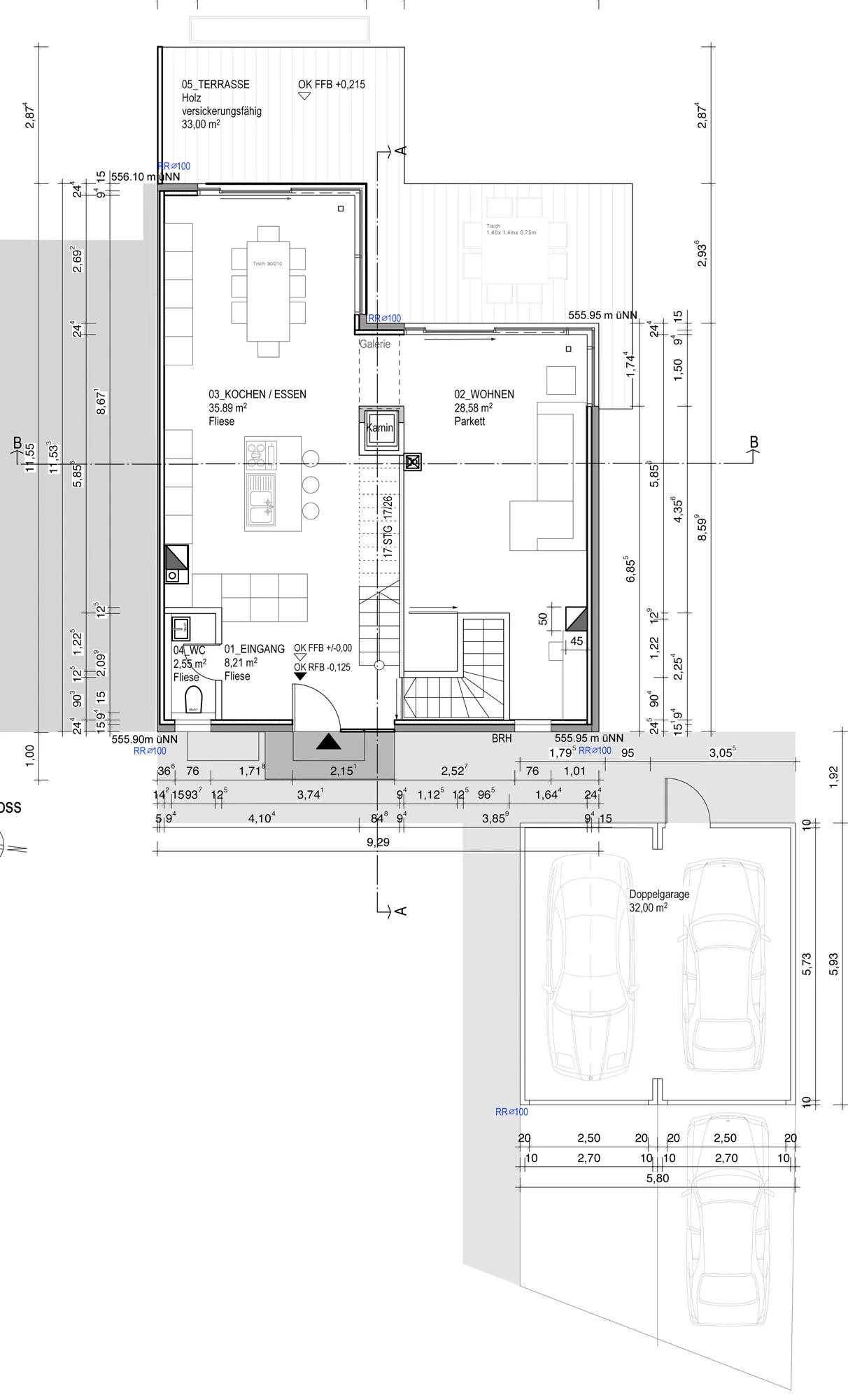
Eine zentrale Treppe gliedert den Grundriss über alle Geschosse. Die Treppe wird dabei zum Kommunikationsraum, öffnet und begrenzt Raumbezüge, lässt Blicke zu und beschränkt diese. Zentrum des Erdgeschosses bildet ein offener Kamin, als Blickfang und gleichzeitig Gelenk zwischen dem Wohnzimmer und der Wohnküche. 
Die großzügige Wohnküche mit zentralem Küchenblock wird optisch mit einem großen Esstisch für die Familie in Richtung Terrasse fortgeführt. Durch den Versprung der Baukörper rahmen so das Esszimmer und das Wohnzimmer die Terrasse ein.
Das Gebäude wurde in Holzmassivbauweise ausgeführt. Dies erlaubte einen hohen Vorfertigungsgrad gerade bei der Fassade und eine schnelle Realisierung.
Darüber hinaus konnte in enger Zusammenarbeit mit der Bauherrschaft ein Konzept für die Einbaumöbel erarbeitet werden, die so gestalterisch mit der Architektur eine Einheit bilden können.
Projektdaten:
Bauherr: privat
Ort: München Putzbrunn
Realisierung: 2015 - 2016
Fläche: 190 qm
Foto Jann Averwerser
Foto Jann Averwerser
Foto Jann Averwerser
Foto Jann Averwerser
Foto Jann Averwerser
Foto Jann Averwerser
Foto Jann Averwerser
Foto Jann Averwerser
Foto Jann Averwerser
Foto Jann Averwerser
Foto Jann Averwerser
Foto Jann Averwerser
Foto Jann Averwerser
Foto Jann Averwerser
Foto Jann Averwerser
 
                         
             
             
             
             
             
             
             
             
             
             
             
             
             
             
             
             
            