LUD - Penthousewohnung in Solln
Für einen Münchner Zahnarzt, für den Teamwerk-Architekten schon vor 14 Jahren eine Praxis gebaut hatte, wurde ein komplette Interior-Konzept für sein Penthousewohnung in München Solln entwickelt. Dabei wurde neben der Raumkonzeption die komplette feste und lose Möblierung geplant und realisiert.
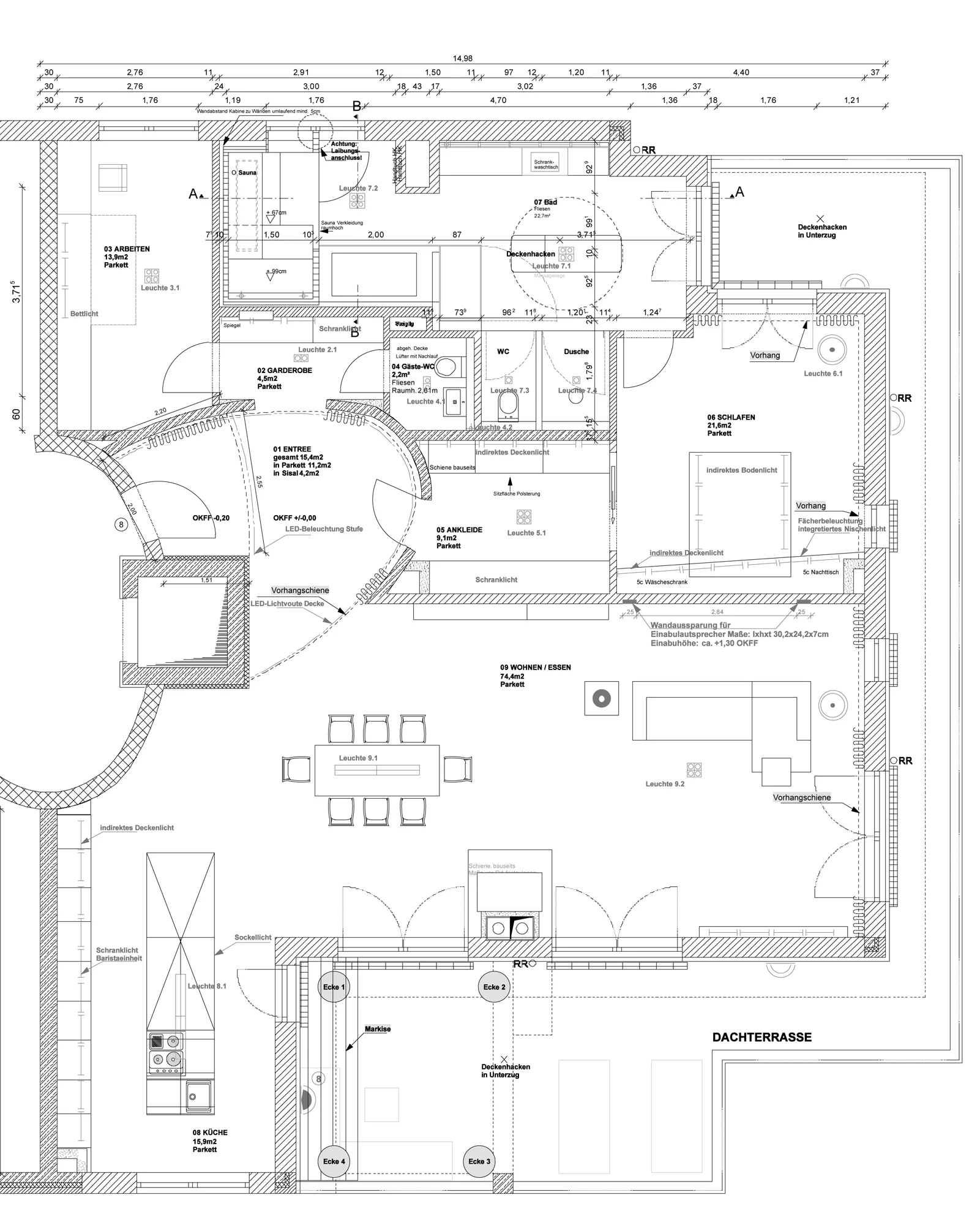
Die Besonderheit der Wohnung liegt im großen Wohnraum des Penthouses mit Essbereich, Kamin und offener Küche. Die Küche wurde dabei so konzipiert, dass die für eine Küche typischen Einrichtungsgegenstände mittels verschiebbarer Türen und Platten komplett versteckt werden konnten. So verfügt eine 7m lange Schrankwand über Einschubtüren hinter denen sich Kühl- und Weinschrank, eine Baris-taeinheit und Lagerflächen befinden.
In geschlossenem Zustand ist nur eine weisse Wand zu sehen mit dünnen senkrechten Fugen, die eher an eine Wandverkleidung erinnert. Der zentrale Küchenblock verfügt über eine 1,2m x 3,5m große Kunststeinplatte, die bis zur Hälfte längs verschoben werden kann. Darunter verbirgt sich eine Edelstahlarbeitsplatte mit integrierter Kocheinheit und Spüle. Durch Verwendung versenkbarer Armaturen konnte auch diese unter dem Sliding-Top versteckt werden. Das Sliding-Top ist so konstruiert, dass dieses als vollwertiger und belastbarer Tisch verwendet werden kann. Die darüber befindlichen Leuchten sind ebenso individuell zu verschieben.
Neben der detaillierten Planung der Küche wurden folgende Bereiche geplant, detailliert und realisiert: Ankleide, Bürobereich, Schlafzimmer, Bar, Sauna, Bad und Garderobe.
Projektdaten:
Bauherr: privat
Ort: München Solln
Realisierung: 2014
Fläche: 270qm
 
                         
             
             
             
             
             
             
             
            