KID - Erweiterung einer Kiga am Kidlerplatz, München
Die Baureferat der Landeshauptstadt München plante die Erweiterung des bestehenden Kinderkrippe am Kidlerplatz 5 in München um zwei weitere Gruppen mit dann insgesamt 72 Kindern. Alternativ sollte dabei eine Erweiterung des bestehenden Gebäudes und ein Neubau untersucht werden.
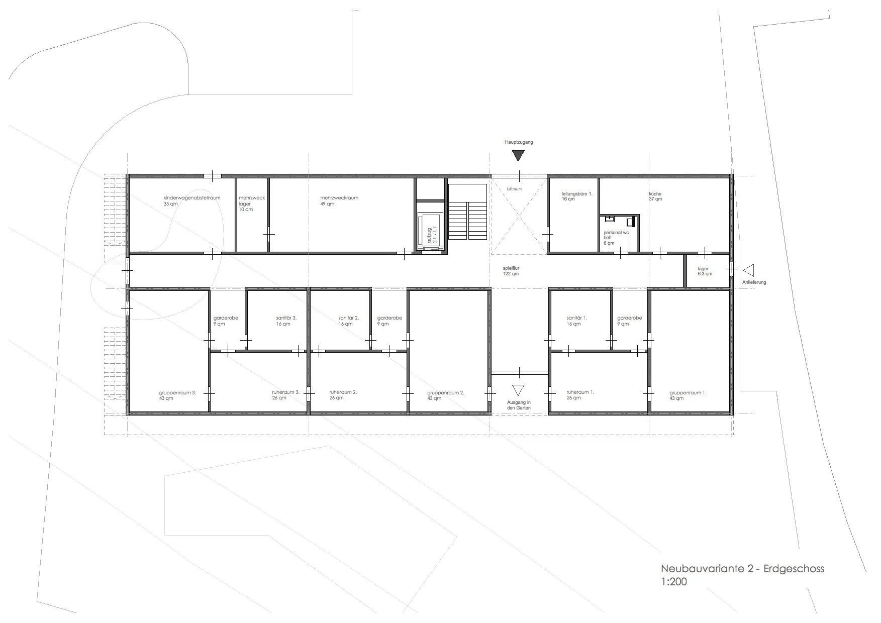
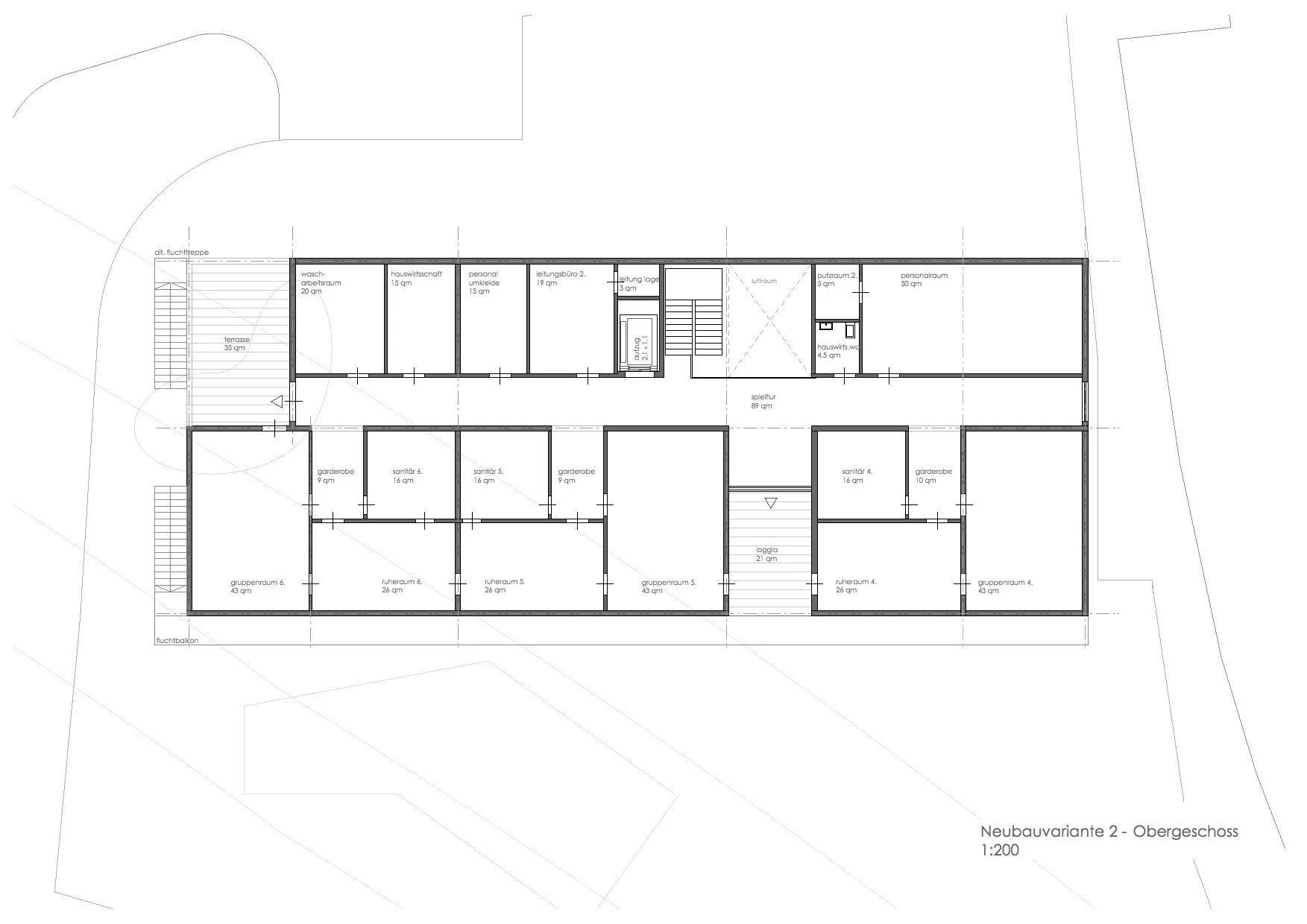
Die Studie untersuchte anhand der Vorgaben des Raumprogramms verschiedenste Varianten. Hauptaugenmerk lag dabei auf der Effizienz des Gebäudegrundrisses hinsichtlich des Betriebes aber auch im Bau. Anhand aufwendiger Volumen- und Grundrissstudien, sowie durch Vergleichstabellen, wurden klare und nachvollziehbare Entscheidungsgrundlagen erarbeitet. Ergebnis war die Entscheidung das Bestandsgebäude abzureißen und durch einen Neubau zu ersetzen. Dieser Neubau hätte dann auch die aktuell problematische Aufteilung der Freiflächen kompensiert.
Der Grundriss sieht eine klare Gliederung der Nutzungen in Gruppen- und Nebenräume nach Süden vor und eine Organisation der versorgenden Nutzungen, wie Lager, Küche und Büro nach Norden. Die Gruppenräume und ihre Nebenräume aus Sanitär und Ruheraum bilden dabei kleine Einheiten, die durch einen eigenen kleinen Flur erschlossen werden.
Projektdaten:
Auftraggeber: LH München Baureferat
Jahr: Oktober 2011
 
                         
             
             
             
             
             
             
             
             
            